Sapphire Serenity

Pittsboro, North Carolina

Fiberglass Pools

What We Did

Sapphire Serenity features a large splash pad, built in spa, spillover, and large tiled area for plenty of seating. This pool area is sure to inspire tranquility.

Pool Plan & Process

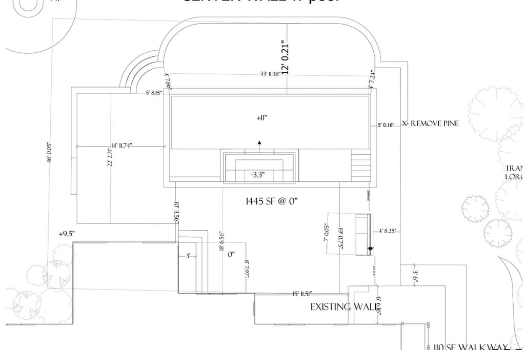
Sapphire Serenity Pool Project Blueprint
click to enlarge
Play Video
Ready to Get Started?

You don’t have to wait months for a new pool! Our current fiberglass installation time is around eight weeks, and for a concrete pool – six weeks to start with a 60-day completion goal. 

View our portfolio to see some of the most recently completed projects, and when you’re ready, contact us today about your pool project.

More Projects