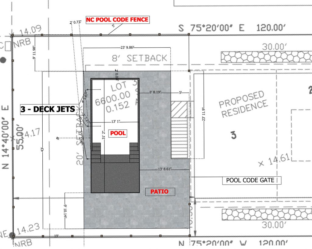
The Oasis Retreat features a sleek fiberglass frame, three water features, a splash pad area, and beautiful stone tiling. Making it the perfect addition to a smaller backyard for more outdoor enjoyment.
The Oasis Retreat features a sleek fiberglass frame, three water features, a splash pad area, and beautiful stone tiling. Making it the perfect addition to a smaller backyard for more outdoor enjoyment.
You don’t have to wait months for a new pool! Our current fiberglass installation time is around eight weeks, and for a concrete pool – six weeks to start with a 60-day completion goal.
View our portfolio to see some of the most recently completed projects, and when you’re ready, contact us today about your pool project.
Browse our website
SERVICES
GENERAL
Featured Project