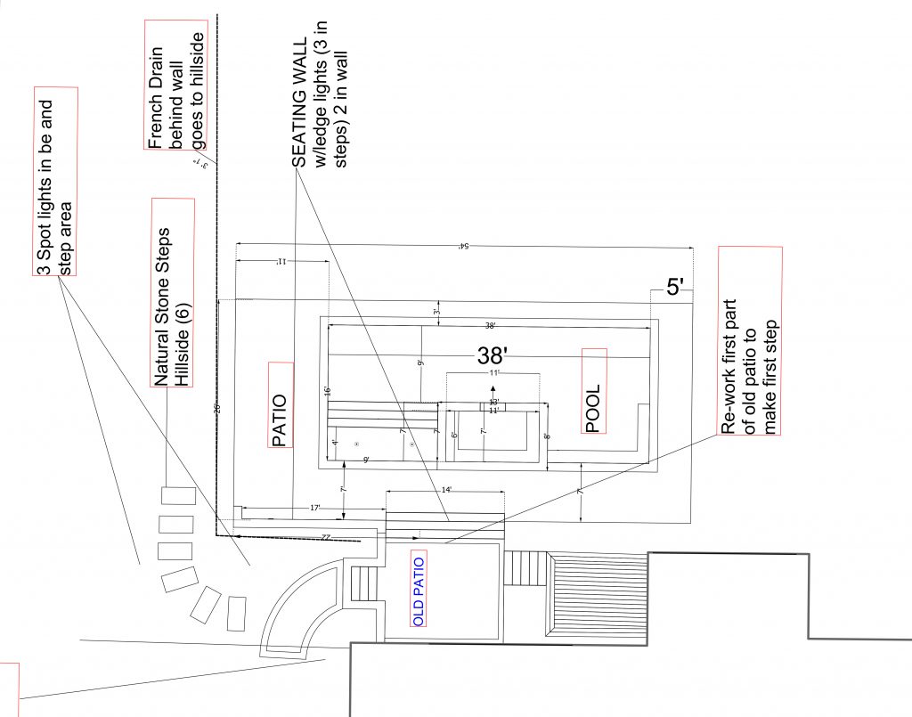
Located on a pronounced hill, this installation took advantage of the natural slope to offer views of the rolling hills and trees. Using dirt from the pool excavation, we increased the usable yard area and created a great pool patio. We integrated the new pool patio with the more traditional existing patio, creating a natural area with stone steps and lighting.


